- Distinctive detached residence on sought-after Fleetwood Avenue, Herne Bay
- Excellent location just a short walk from the train station, ideal for commuters to London
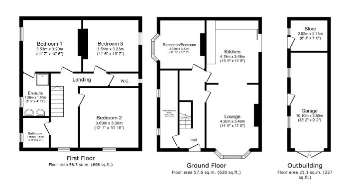
- Well-maintained throughout, offering great potential to update and personalise
- Flexible ground floor layout with open-plan lounge, kitchen and dining area
- Additional ground floor rooms including a study and bedroom, adaptable to your needs
- Three first-floor bedrooms, including a main bedroom with en suite shower room
- Family bathroom featuring a classic Avocado suite and a separate WC
- Ample off-street parking with decorative metal railings to the front
- Private courtyard garden, accessible from the kitchen/dining area—ideal for outdoor dining or relaxation
- Detached brick-built outbuilding/garage offering scope (subject to planning) for an annexe, studio, or workshop
Positioned on the ever-popular Fleetwood Avenue in Herne Bay, this distinctive detached residence offers a wonderful balance of space, flexibility, and convenience—just a short stroll from the station, making it ideal for anyone commuting to London.
Lovingly maintained to a good standard, the home now presents an exciting opportunity for those wishing to modernise and add their own personal touch. The versatile ground floor layout includes a welcoming lounge that opens into the kitchen and dining area, perfect for family life and entertaining alike. A study and an additional bedroom on this level provide excellent flexibility, allowing you to adapt the space to suit your lifestyle—whether that’s working from home, hosting guests, or creating a snug retreat.
Upstairs, there are three well-proportioned bedrooms, including a main bedroom with its own en suite shower room. The family bathroom features a charming Avocado suite, and there’s a separate WC for added convenience.
Outside, the property offers ample parking enclosed by attractive metal railings. The courtyard, accessed directly from the kitchen/dining area, provides a private, low-maintenance space to unwind or enjoy outdoor dining.
A detached brick-built garage/outbuilding to the rear offers further potential—subject to planning—to create an annexe, studio, or workshop.
With no onward chain, this one-of-a-kind home on Fleetwood Avenue invites you to bring new life to its timeless charm and enjoy a fantastic location close to the coast, town, and excellent transport links.
EPC Rating D -
Council Tax Band D -
Tenure Freehold -
Lounge - 3.49 x 4.26 (11'5" x 13'11")
Kitchen - 4.19 x 3.49 (13'8" x 11'5")
Reception/ Bedroom Four -
Hallway - 1.65 x 3.9 (5'4" x 12'9")
Office - 1.60 x 4.02 (5'2" x 13'2")
Bedroom One - 3.2 x 3.53 (10'5" x 11'6")
Bedroom Two - 3.37 x 3.23 (11'0" x 10'7")
Bedroom Three - 3.3 x 3.69 (10'9" x 12'1")
Wash room - 1.76 x 0.7 (5'9" x 2'3")
Bathroom - 1.61 x 1.75 (5'3" x 5'8")
Shower room - 1.5 x 1.9 (4'11" x 6'2")
Outbuilding - 2.5 x 10.1 (8'2" x 33'1")
Store Area - 2.13 x 2.52 (6'11" x 8'3")
Floorplan Clause -









































