- Freehold commercial property in a prime town centre location
- For Sale by modern method of auction
- Situated on Mortimer Street, a high-footfall area in the heart of Herne Bay
- Current Use C3
- Spacious ground floor retail area ideal for a variety of business uses
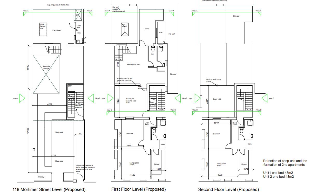
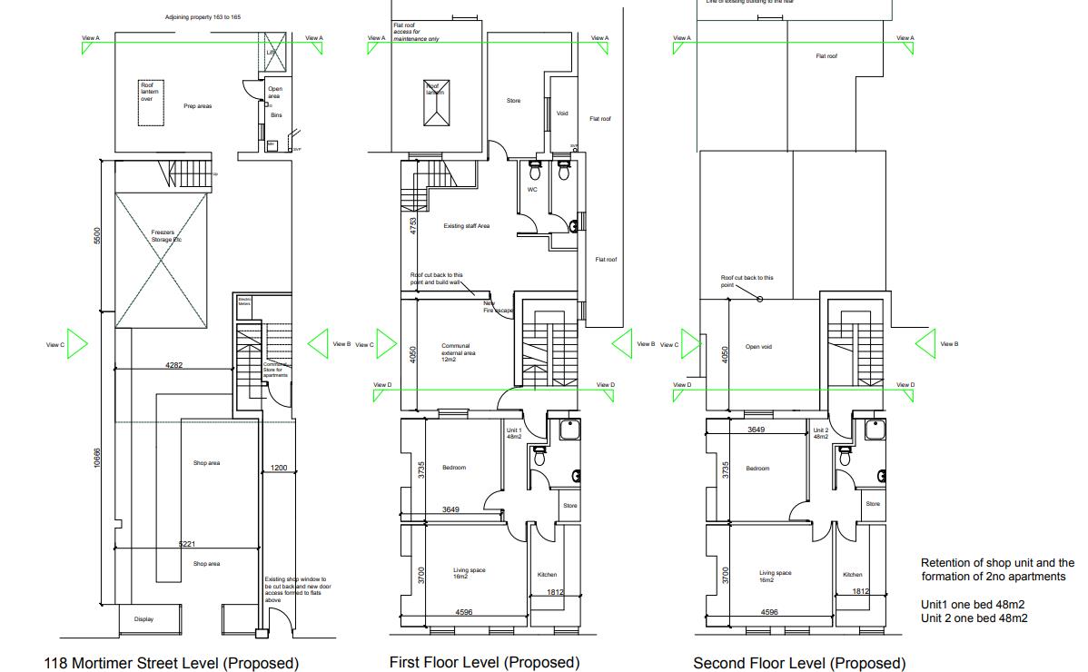
- Planning permission granted for residential flats above
- Strong opportunity for mixed-use development and long-term rental income
- Surrounded by local shops, cafes, and amenities – great visibility and accessibility
- Suitable for owner-occupiers, investors, or developers
- Call Now For A Viewing!
An exciting opportunity to purchase a prominent freehold commercial unit situated in the heart of Mortimer Street, Herne Bay.
This property is for sale by the Modern Method of Auction, meaning the buyer and seller are to Complete within 56 days (the "Reservation Period"). Interested parties personal data will be shared with the Auctioneer (iamsold).
This spacious ground floor premises offers excellent potential for a range of commercial uses, including retail, food service, or professional services. The unit benefits from a generous shop front area with strong visibility and footfall, as well as additional rooms to the rear that currently house commercial refrigeration units.
In addition to its prime location and versatile layout, the property also comes with the significant advantage of granted planning permission for residential flats above, offering excellent development potential and scope for long-term investment returns.
Whether you're a business owner looking for a high-profile site, or a developer seeking a mixed-use investment opportunity, this property presents strong potential in a sought-after coastal town.
For further information or to arrange a viewing, contact Zest Homes Commercial today.
Auctioneers Comments: -
Planning -
Use A1 / A2 -
Commercial Current EPC Rating D (99) -
Floorplan Clause -














